ГлавнаяГотовый арендный бизнес — Героев Сибиряков ул., 8, к А

Героев Сибиряков ул., 8, к А,
2000.00 м2

100 000 000 руб.

50000 руб./м2

Следить за ценой


Площадь: 2000.00 м2

Окупаемость, лет: 10


Продается отдельно стоящее здание 2000 м² с арендаторами.
Адрес и фото изменены, подробная информация по запросу.

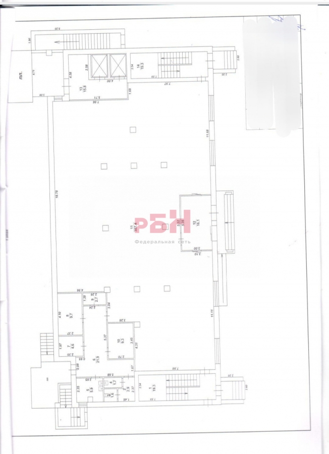
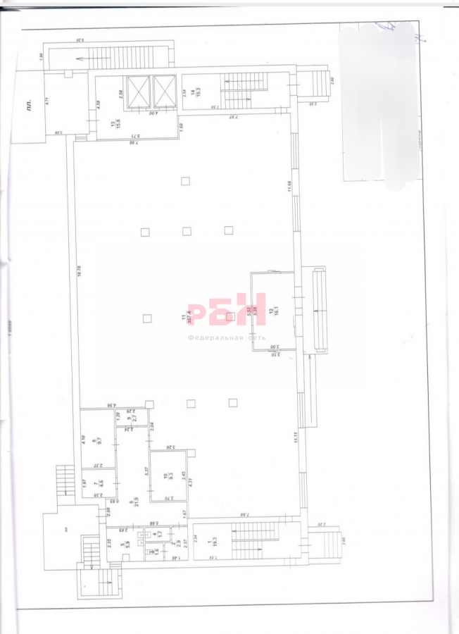
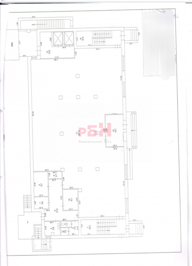
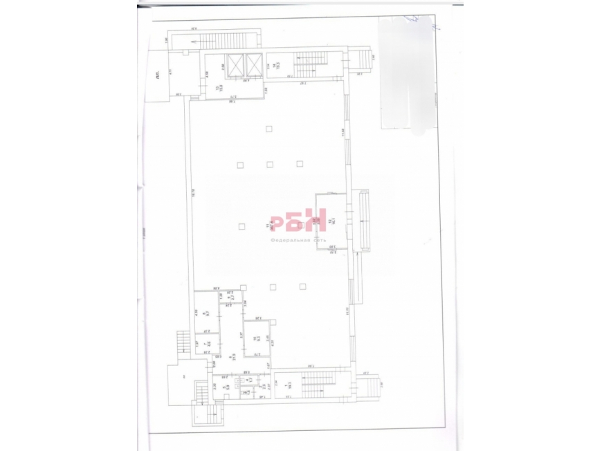
ХАРАКТЕРИСТИКИ:
- 4 уровня; подвал, 1-3 этажи
- земельный участок, 874 м², в аренде на 49 лет
- здание на 90 % в аренде
- 70% - якорные федеральные сети (подвал, 1 - 2 этажи)
- коммуникации централизованные
- электрическая мощность - 120 кВт

ОКУПАЕМОСТЬ: доходы минус расходы - 10 лет!

От собственника. Без комиссии.
Менеджер - Петухова Ирина
Арт. 120522115

Специалист

Петухова Ирина

+7-982-988-44-34

или оставьте ваш номер,
и я перезвоню в течение 5 минут

Согласен с Политикой конфинденциальности и с Политикой оператора в отношении обработки персональных данных

Отправляя заявку вы соглашаетесь на обработку персональных данных

Похожие объекты

Посмотреть другие объявления в этой категории