ГлавнаяГотовый арендный бизнес — Буденновский пр-кт, 120/1

Буденновский пр-кт, 120/1,
1255.00 м2

75 000 000 руб.

59760 руб./м2

Следить за ценой


Площадь: 1255.00 м2

Окупаемость: по запросу


Доходный арендный бизнес в центре города - ТЦ «Будённовский», 1255 м

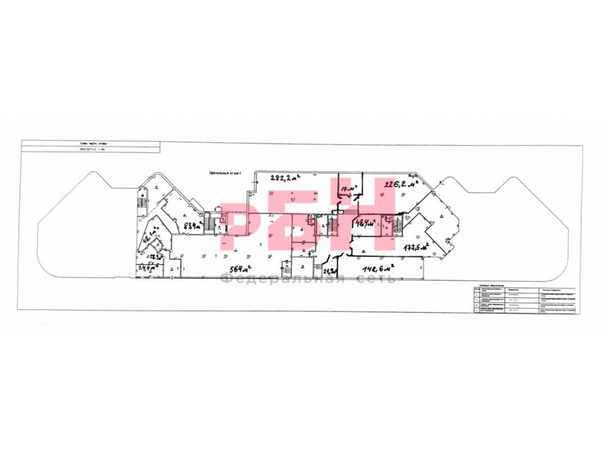
Продается готовый арендный бизнес (ГАБ) — половина 1-го этажа торгового центра «Будённовский», расположенного по адресу: г. Ростов-на-Дону, Будённовский проспект, 120/1.

Характеристики и преимущества:
- торговый центр в составе жилого комплекса (МКД)
- первая линия, высокий пешеходный и автомобильный трафик

Левая часть (841 000 ₽/мес аренды, окупаемость 10,5 лет):
- Пятёрочка - 564 м², 564 000 ₽/мес + % от РТО (открытие январь 2025)
- Аптека Апрель - 55 м², 140 000 ₽/мес
- Пивной склад - 45 000 ₽/мес
- Пустое помещение - 55 м², потенциал 80 000 ₽/мес
- Аппараты кофе/игрушки - 12 000 ₽/мес
Общий арендный поток: 630.000 ₽ в месяц

Стабильные арендаторы, включая федеральные сети
Дополнительно — потенциал роста за счёт % от оборота и свободных площадей

Идеальный выбор для инвестора, заинтересованного в готовом бизнесе с высокой ликвидностью в центре Ростова-на-Дону.

----------------------------------------------------------------------
По всем вопросам можете обращаться к вашему персональному менеджеру:
Старченко Инна - консультант по направлению офисные и торговые помещения
----------------------------------------------------------------------
Регион Бизнес Недвижимость
От собственника. Без комиссии.
Специальные условия для агентов по данному объекту.Номер объекта: #5/552651/17649

Специалист

Старченко Инна

+7-982-988-44-34

или оставьте ваш номер,
и я перезвоню в течение 5 минут

Согласен с Политикой конфинденциальности и с Политикой оператора в отношении обработки персональных данных

Отправляя заявку вы соглашаетесь на обработку персональных данных

Похожие объекты

Посмотреть другие объявления в этой категории