ГлавнаяКаталог Помещение свободного назначения — Бакинских Комиссаров ул., 3

Бакинских Комиссаров ул., 3, 85.00 м 2

65 000 ₽
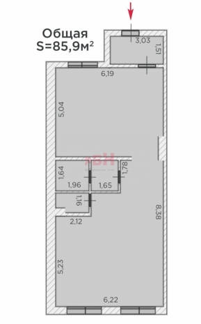
Площадь: 85.00м 2 Этаж 1 из 17
764 ₽/м 2
Гмыза Виталий
Гмыза Виталий
Специалист
или оставьте ваш номер,
и я перезвоню в течение 5 минут
Нажимая на кнопку, вы даете своё согласие на обработку персональных данных и соглашаетесь с политикой конфиденциальности
Предлагается в аренду торговое помещение, общей площадью 85 кв.м. На срок от 11 месяцев.
Без комиссии для арендатора!

- расположено на 1-м этаже 17-ти этажного жилого дома с административными помещениями;
- сквозная подъездная система жилого дома;
- первая линия;
- отдельная входная группа;
- свободная планировка;
- окна на обе стороны дома;
- свой санузел;
- дополнительная мокрая точка;
- высота потолков – 3,5 м;
- мощность – 7,5 кВт;
- пожарная сигнализация;
- парковка;
- хорошая транспортная развязка.

В шаговой доступности расположены остановки общественного транспорта, торговые центры, магазины.
Помещение подойдет под аптеку, офис, клиентский отдел, стоматологию, адвокатскую контору, салон красоты и т.п.

Коммунальные платежи в стоимость аренды не включены.
Более подробную информацию уточняйте у наших специалистов.
_______________________________________
"Регион Бизнес Недвижимость"
Коммерческая недвижимость
Без комиссии для арендаторов"


Арт. 22863869
Расположение

Бакинских Комиссаров ул., 3

Похожие объекты

Посмотреть другие объявления в этой категории