Созидателей ул., 5, 121.40 м 2

150 000 ₽
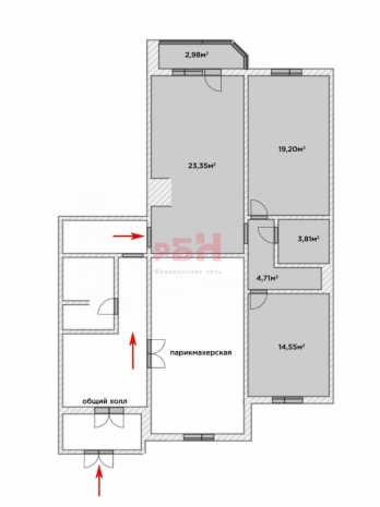
Площадь: 121.40м 2 Этаж 1 из 14
1 235 ₽/м 2
Гмыза Виталий
Гмыза Виталий
Специалист
или оставьте ваш номер,
и я перезвоню в течение 5 минут
Нажимая на кнопку, вы даете своё согласие на обработку персональных данных и соглашаетесь с политикой конфиденциальности
Сдаётся помещение свободного назначения площадью 121.4 кв.м., на срок от 11 месяцев.
БЕЗ КОМИССИИ ДЛЯ АРЕНДАТОРА!!!
  • светлое, чистое удобное помещение;

  • расположено в новом густонаселённом районе города;

  • высокий пешеходный и автомобильный трафик;

  • расположено в общем помещении с действующей парикмахерской;

  • удобное место для салона красоты и т.п;

  • первая линия;

  • в помещении выполнен косметический ремонт;

  • свободная парковка;

  • расположено на первом этаже жилого дома;

  • имеется мокрая точка (с/у);

  • рядом расположены сетевые магазины напитков и продуктов, аптеки, ozon, wildberries и другое.

  • Отличный вариант для ведения своего бизнеса!


Коммунальные платежи в стоимость аренды не включены.
Более подробную информацию уточняйте у наших специалистов.
---------------------------------------------------------
Регион Бизнес Недвижимость
Коммерческая недвижимость
Без комиссии для арендаторов
Арт. 31366472
Расположение

Созидателей ул., 5

Похожие объекты

Посмотреть другие объявления в этой категории