Солнечная ул., 38, 700.00 м 2

350 000 ₽
Площадь: 700.00м 2 Этаж 3 из 3
500 ₽/м 2
Хатинская Наталья
Хатинская Наталья
Специалист
или оставьте ваш номер,
и я перезвоню в течение 5 минут
Нажимая на кнопку, вы даете своё согласие на обработку персональных данных и соглашаетесь с политикой конфиденциальности
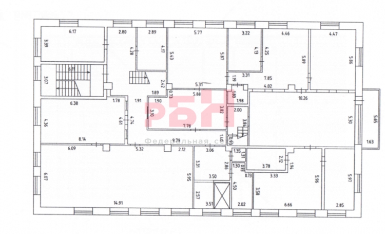
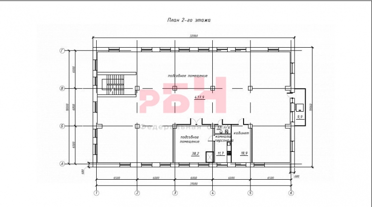
Предлагается в аренду помещение на третьем этаже отдельно стоящего здания общей площадью 700 м²

Без комиссии для арендаторов

- черта города, оживленный район;
- хорошая транспортная доступность, рядом строительство новой развязки;
- общая площадь третьего этажа + антресоль 700 м²;
- несколько кабинетов и сан/узлов;
- 50 кВт;
- доступ в помещение 24/7;
- парковка на прилегающей территории.

Помещение подойдёт для офиса, архива, гостиничных услуг и т.д.

Стоимость аренды: 350 000 рублей/месяц.

Коммунальные платежи оплачиваются дополнительно.

Более подробную информацию уточняйте у наших специалистов.
--------------------------------------------------
"Регион Бизнес Недвижимость"
Коммерческая недвижимость
Без комиссии для арендаторов

Арт. 99814535
Расположение

Солнечная ул., 38

Похожие объекты

Посмотреть другие объявления в этой категории