ГлавнаяКаталог Торговая площадь — 50 лет Октября ул., 1, строение 1

50 лет Октября ул., 1, строение 1, 76.00 м 2

95 000 ₽
Площадь: 76.00м 2 Этаж 1 из 10
1 250 ₽/м 2
Оржеховская Юлия
Оржеховская Юлия
Специалист
или оставьте ваш номер,
и я перезвоню в течение 5 минут
Нажимая на кнопку, вы даете своё согласие на обработку персональных данных и соглашаетесь с политикой конфиденциальности
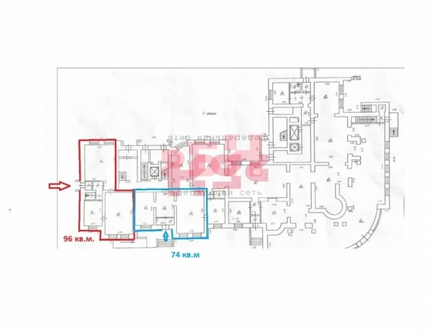
СДАМ в долгосрочную аренду помещение в центре, на 1 линии ул 50 лет Октября, напротив ДД СТОЛЫПИН! Площадь 76 кв.м., вход с первой линии! Есть часть с торца с отдельным входом 96 кв.м.

БЕЗ КОМИССИИ ДЛЯ АРЕНДАТОРА.
  • первая линия
  • 1 этаж
  • центр
  • остановка общественного транспорта
  • высокий трафик
  • нужно освежить ремонт после прежнего арендатора
  • торговый зал, зона ресепшн и 2 маленьких помещения, в одном есть окно
  • пандус
  • сложившееся торгово-офисное соседство
  • парковка

Идеально под салон красоты, студию, шоу-рум, офис, клиентский офис, торговлю и т.п.
Спешите! Отличное предложение! Ждем на показ!
_____________________________________________________________________________
Регион Бизнес Недвижимость
Коммерческая недвижимость
Без комиссии для арендатора
Арт. 99937635
Расположение

50 лет Октября ул., 1, строение 1

Похожие объекты

Посмотреть другие объявления в этой категории