Солнечная ул., 38, 1854.60 м 2

137 500 000 ₽
Площадь: 1854.60м 2 Этаж 1 из 1
74 139 ₽/м 2
Хатинская Наталья
Хатинская Наталья
Специалист
или оставьте ваш номер,
и я перезвоню в течение 5 минут
Нажимая на кнопку, вы даете своё согласие на обработку персональных данных и соглашаетесь с политикой конфиденциальности
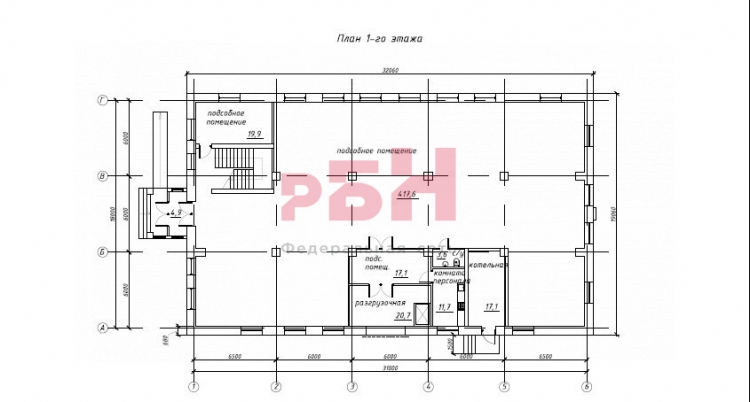
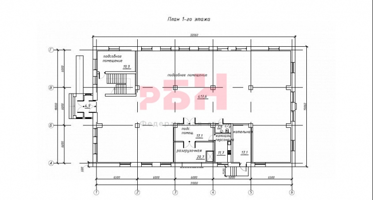
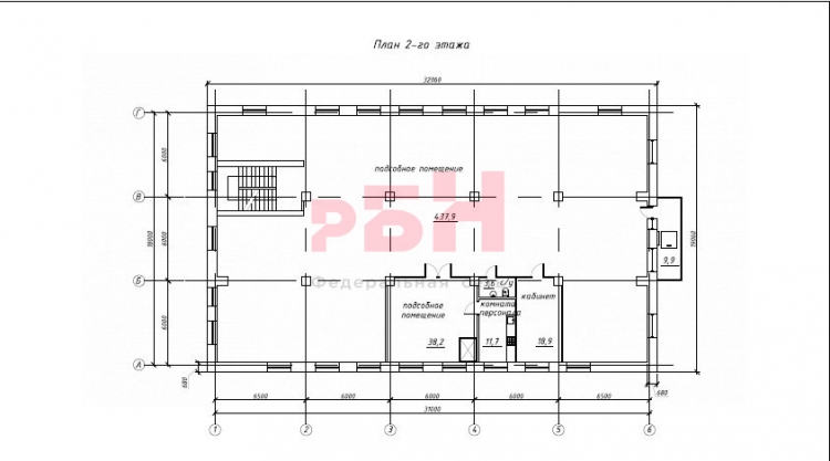
Предлагается в покупку нежилое здание в д. Патрушева, общей площадью 1854,6 м² на земельном участке 30 соток.
  • хорошая транспортная доступность, рядом строительство новой развязки;
  • черта города, перспективный район.
  • первый этаж: оборудованный гараж, склад, санузел, кухня, высота потолка 4,15 м;
  • второй этаж: свободная планировка, санузел, кухня; высота потолка 3,5 м;
  • третий этаж: апартаменты, дополнительно мансарда на четвертом этаже;
  • несколько входных групп;
  • отопление газовое, скважина, септик, грузовой подъёмник, генератор резервного питания, автоматические ворота; система видеонаблюдения, интернет;
  • на территории: гостевой дом 100 м²; 15 соток садового участка с теплицами, хоз. постройки.


Помещение подходит под гостиничный или медицинский бизнес, образовательные услуги или организацию производства.

Торг реальному покупателю!

Более подробную информацию уточняйте у наших специалистов.
--------------------------------------------------
"Регион Бизнес Недвижимость"
Коммерческая недвижимость
Без комиссии для покупателей

Арт. 108784117
Расположение

Солнечная ул., 38

Похожие объекты

Посмотреть другие объявления в этой категории